塔式起重机
技术产品


 

FKDX-HZ型施工电梯重量限制器
一、概述
FKDX-HZ型施工电梯重量限制器是应用于各类施工电梯的一种安全限位装置。它通过有效限制起重机的最大起重量,达到保护施工电梯安全工作的目的。该产品符合GB6067-1995《起重机安全规范》的标准及设计要求,结构紧凑,调试方便。
二、结构及工作原理
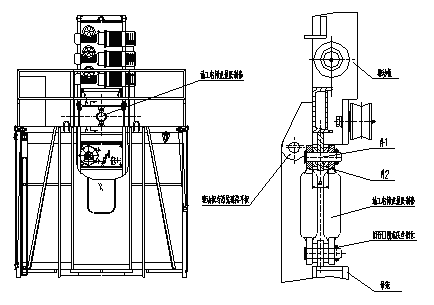
1.结构简图一
2.工作原理
FKDX-HZ型系列重量限制器由测力环、微动行程开关等件组成,当测力环在受拉工况下,通过产生一定量的弹性变形,带动环内的弓形金
属板发生形变,从而使装在弓形板上的微动行程开关触头与调整螺钉之间产生相对位移,进而触发产生电信号,所需的限制载荷可通过调节调整螺钉予以获得。
三、主要技术性能参数
1、单环载荷限制范围:5KN-20KN
2、重复精度:2.5%
3、断电范围:100%-110%可调
4、适应环境温度:-20℃-+60℃
四、安装形式
施工电梯重量限制器安装于施工电梯驱动板与吊笼中间,具体位置由用户根据实际情况予以确定。下面安装方案供参考:
 
五、调试
将施工电梯重量限制器安装在施工电梯的适当位置(应与钢结构件无干涉)后,根据实际工况利用试验法码按下列步骤进行调试:
1.将额定载荷(法码)置于施工电梯吊笼内,施工电梯吊笼应能以额定起升速度起升,重量限制器不动作;
2.降下吊笼,增加载荷10%再度起升,调整重量限制器的调整镙钉和微动开关触头之间的间隙,使微动开关触发,施工电梯吊笼不能起升。
上述工况反复试吊三次以上,确定限位可靠后锁紧防松螺母,即可进行正常安全工作。
六、维护与保养
1、施工电梯司机或专业调试人员应熟练掌握FKDX-HZ型施工电梯重量限制器的工作原理和调试方法,班前进行检查并开机试验其功能,然后开始工作。
2、限制器两端的铰接点及紧固部位应经常检查和维护。
3、施工电梯转移工地,需再次按说明书对限制器重新进行调整。
注意:安装时,禁止重击,以免损坏内部微动开关。



© 版权所有 富友集团 山东富友有限公司 备案序列号:鲁ICP备19024149号-1
销售电话:0531-88877879 租赁电话:0531-88877879 传真:0531-88877879
公司地址:济南市高新区颖秀路1356号知慧大厦 邮编:250101