塔式起重机
技术产品
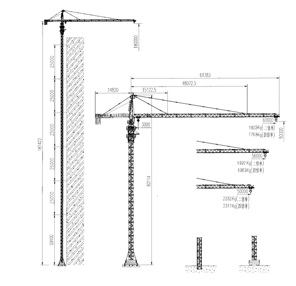
塔式起重机技术系列图纸
所有系列
塔式起重机技术非标产品
塔机转台应力分布图
整机结构示意图
平台结构示意图
塔机非标产品实例
塔机非标产品图示
起重机技术系列图纸
QD桥式
LX电动单梁悬挂
LH电动葫芦双梁
门吊
MH葫芦
施工升降机技术系列图纸
SS80/80
SCD200/200
SC200/200
物料提升机技术系列图纸
TM150(龙门式)
FTS150(双吊笼)
FT150
砼配料机技术系列图纸
PL800—PL2400
砼搅拌机技术系列图纸
JS500-JS1500
机电产品
塔机常规联动操纵台
塔机电子联动操纵台
塔机安全监控管理系统
塔机防倾翻监控仪
FKDX重量限制器Ι
FKDX重量限制器Ⅱ
FKDX环式重量限制器
FKDX-L型力矩限制器
高度/幅度/回转限制器
施工电梯重量限制器
塔机电气控制柜
塔机司机驾驶室
塔式起重机
区域安全保护系统
塔机防碰撞系统
塔机远程监控系统
塔机常规联动操纵台
塔机电子联动操纵台
塔机安全监控管理系统
塔机防倾翻监控仪
FKDX重量限制器Ι
FKDX重量限制器Ⅱ
FKDX环式重量限制器
FKDX-L型力矩限制器
高度/幅度/回转限制器
施工电梯重量限制器
塔机电气控制柜
塔机司机驾驶室
塔式起重机
区域安全保护系统
塔机防碰撞系统
塔机远程监控系统
产品销售与塔机租赁
资料下载
产品说明书下载
产品合格证与试验报告
资质下载
塔机基础计算软件
鉴定意见下载
宣传资料下载
基础配筋
QTZ125
© 版权所有 富友集团 山东富友有限公司 备案序列号:
鲁ICP备19024149号-1
销售电话:0531-88877879 租赁电话:0531-88877879 传真:0531-88877879
公司地址:济南市高新区颖秀路1356号知慧大厦 邮编:250101